この事例をもとに
リノベの相談
場所:宇都宮宝木リノベスタジオ
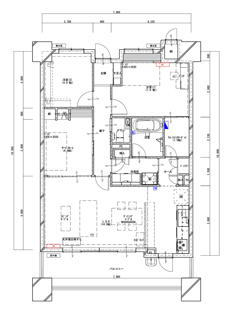
白を基調とした明るい空間に、木の家具がやさしくなじむLDK。視線を遮るものをできるだけ減らしながら、必要なものはきちんと収まるように整えられた住まいです。
今回のリノベーションでは、「好きなものに囲まれながら、すっきり暮らすこと」を大切に、収納と家具の在り方を一から見直しました。
交通の便を考えてマンションを購入したものの、内装や収納への不満があったというI様。そこで、リノベーションで理想の空間にして、さらに家具も一新しよう!と決めたそうです。
「毎日をもっと心地よく、自分たちらしく過ごしたい」。そんな思いから、空間を整え、暮らし方に合った住まいへのリノベーションがスタートしました。
新たにリノベーションするにあたって、住まいの中心となるLDKは家具や壁紙まで「好き」が詰まったものを選定。I様ご家族にとっての過ごしやすさと心地よさを追求した、家族が自然と集まりたくなる空間となりました。
白を基調とした空間に、木の素材感を取り入れた家具がやさしくなじみ、シンプルながらも温かみを感じられる雰囲気に。主張しすぎない色や素材を選ぶことで、日々の暮らしの中で飽きのこないLDKとなっています。
キッチンは対面式を採用し、リビングやダイニングにいる家族と会話を楽しみながら作業ができる配置に。料理をしながら会話したり、食事の準備や後片付けも一緒に行ったりと、家事の時間そのものが、家族のコミュニケーションの場になっています。
光が差し込むダイニングは、食事やお茶をするのが楽しみになりそう
シンプルでやわらかな印象の家具が、部屋の雰囲気にマッチ
LDKで家族の時間を過ごしたあとは、それぞれが自分の時間を大切にできる個室へ。
お母さまのご趣味である山登り用品は、登山靴やリュック、ウェア、小物類まで、用途やサイズに合わせて整理できる収納を計画しました。
これまで部屋ごとに分散していた道具も、まとめて収められるようになり、準備や片付けがスムーズに。趣味に向き合う時間を、より快適に楽しめる環境が整いました。

各個室は好みに合わせた仕様に
部屋一室を収納部屋にすることで、大きな荷物も十分に収まります
各個室には、用途に合わせた造作デスクを設け、仕事や趣味、調べものなどに集中できる場所を確保しています。
また、それぞれの部屋には好みに合わせた壁紙やペンダントライトなどを取り入れ、LDKとは違った表情を持つ、個性的な空間に。「好きなものに囲まれて過ごす」そんな時間を大切にできる場所となりました。
収納と家具を一体で考えることで、作業スペースが散らかりにくく、使い終わったあとも自然と整うのが特徴です。
家族が集まるLDKと、それぞれが自分らしく過ごせる個室。
家具や収納、素材の選び方を工夫することで、日常の中に心地よいメリハリが生まれました。好きなことを楽しみながら、家族の時間も大切にできる住まいが完成しました。
好きなキャラクターの壁紙とモチーフのペンダントライトは癒しの空間に
シンプルな机もお部屋の雰囲気を高めます

それぞれの「好き」が詰まった個室

シンプルで落ち着いた雰囲気のダイニングキッチン

生活スタイルに合わせてリビングと部屋をワンフロアに

場所:宇都宮宝木リノベスタジオ


中古住宅×リノベーションについて相談しよう!!
中古住宅×リノベーションについて相談しよう!